Ver fotos
FavoritoAñadir a favoritos
¿Necesitas servicios adicionales para tu nueva oficina? Descubre más
Alquiler - Madrid

Almagro, 26

Map Ver en el mapa

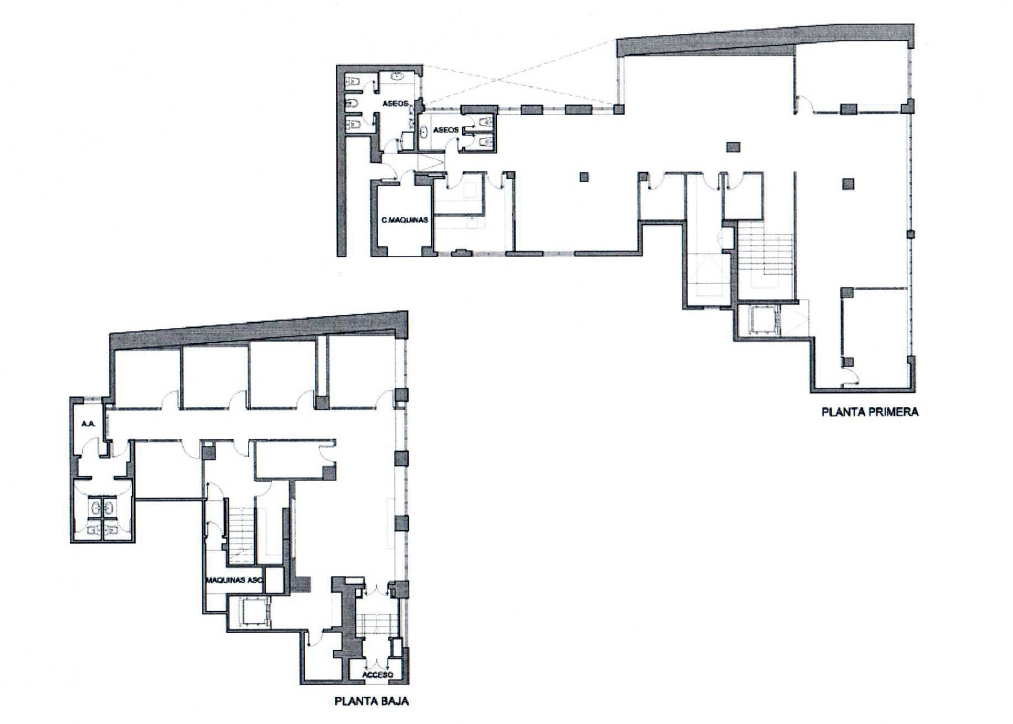
Oficina situada en la entreplanta de un edificio mixto de oficinas y viviendas. Cuenta con licencia. Está compartimentada en 8 despachos, 4 salas de reuniones, 4 aseos, office y cuarto de rac. Terraza de 20 m² no computable.

Especificaciones técnicas
Superficie disponible:
610,00m²
Divisiones:
Dividida con particiones
Instalaciones:
Perímetro
Sistema de Climatización:
Caliente/Frío
Techos:
Armstrong, Otros
Metro
Alonso Martínez (L4, L5, L10)
Bus
3, 7, 5, 14, 27, 45, 150
Oficinas en este edificio
Planta Superficie disponible
Baja-Derecha 230,00 m²
Entreplanta-Derecha 380,00 m²
almagro-26-alquiler-map
Ver todos los planos

Solicitar información de este espacio

Llámanos o contáctanos por Whatsapp:

Llámanos
Ver teléfono 911 01 46 56

O si lo prefieres envíanos un mensaje:

¿Necesitas servicios adicionales?

Gracias por contactar con CBRE
Te daremos respuesta lo antes posible.
Parking
Metro
Bus
Tren
Centro de estudio
Supermercado
Centro comercial
Gimnasio