Ver fotos
FavoritoAdicionar aos favoritos
Precisa de serviços adicionais para o seu novo escritório? Descubra mais
Arrendamento - Madrid

Velázquez, 4

Map Ver no mapa

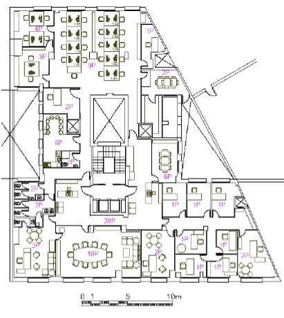
Escritório localizado na Rua Velázquez, no coração do bairro de Salamanca, uma das melhores áreas da capital. Dispõe de dois depósitos, água quente comunitária, fachada de 30 m² na Rua Velázquez e aquecimento central com contas de serviços públicos.

Especificações técnicas
Área disponível:
550,00m²
Sistema de Climatização:
Caliente/Frío
Metro
Velázquez, línea 4.
Comboio
Recoletos.
Autocarro
1, 9, 19, 21, 51, 53, 74.
Nº vagas de garagem internas
2
Escritórios disponíveis neste edifício
Piso Área disponível
01- 550,00 m²
velazquez-4-alquiler-map
Ver todos os planos

Solicitar informações sobre este espaço

ligue-nos por telefone:

Ligue para nós
Ver telefone 911 01 46 56

Ou, se preferir, envie-nos uma mensagem:

Precisa de serviços adicionais?

Obrigado por entrar em contato com a CBRE
Responderemos o mais breve possível.
Estacionamento
Metro
Autocarro
Comboio
Centro de estudo
Supermercado
Centro comercial
Ginásio