Alquiler - Madrid
Edificio ottea
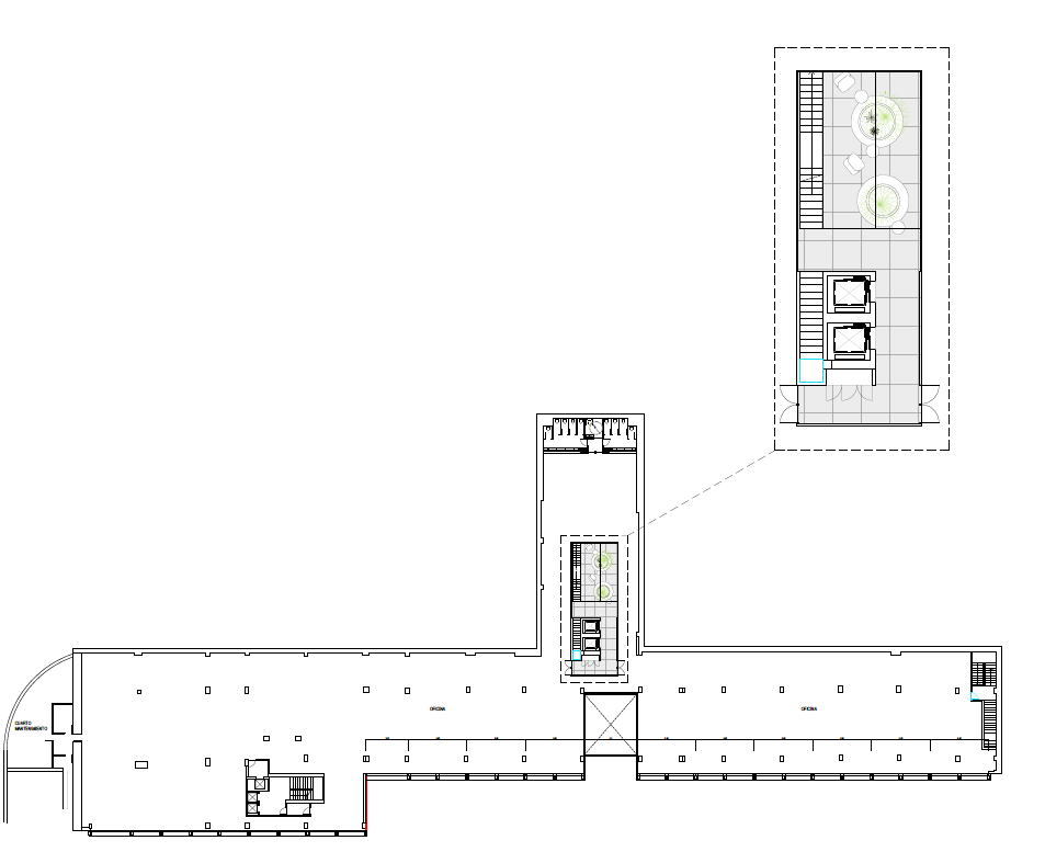
Edificio en plena reforma integral, situado en la zona más prime de Paseo de la Castellana. Cuenta con dos plantas de más de 2.000 m², unas zonas comunes que incluyen salas de reuniones, zonas de trabajo además de una terraza en la azotea del edificio, con acceso directo a la Calle Serrano. La finalización de la obra está prevista para verano del 2025.
Especificaciones técnicas
Superficie disponible:
3.940,96m²
Certificado Energético:
E
Nº ascensores:
3
Conserjería:
Sí
Techos:
Falso techo
Ruben Dario (L5), Nuñez de Balboa (L5, L9
5, 9, 14, 19, 27, 45, 51, 150, N4
70
Oficinas en este edificio
Planta | Superficie disponible |
---|---|
Baja-(Local Comercial) | 635,22 m² |
01ª-Norte | 1.654,08 m² |
02ª-Norte | 1.651,66 m² |

Ver todos los planos
Solicitar información de este espacio
Llámanos o contáctanos por Whatsapp:
O si lo prefieres envíanos un mensaje:
Parking
Metro
Bus
Tren
Centro de estudio
Supermercado
Centro comercial
Gimnasio