Ver fotos
FavoritoAñadir a favoritos
¿Necesitas servicios adicionales para tu nueva oficina? Descubre más
Alquiler - Madrid

Edificio cadenza

Map Ver en el mapa
Ver web del activo

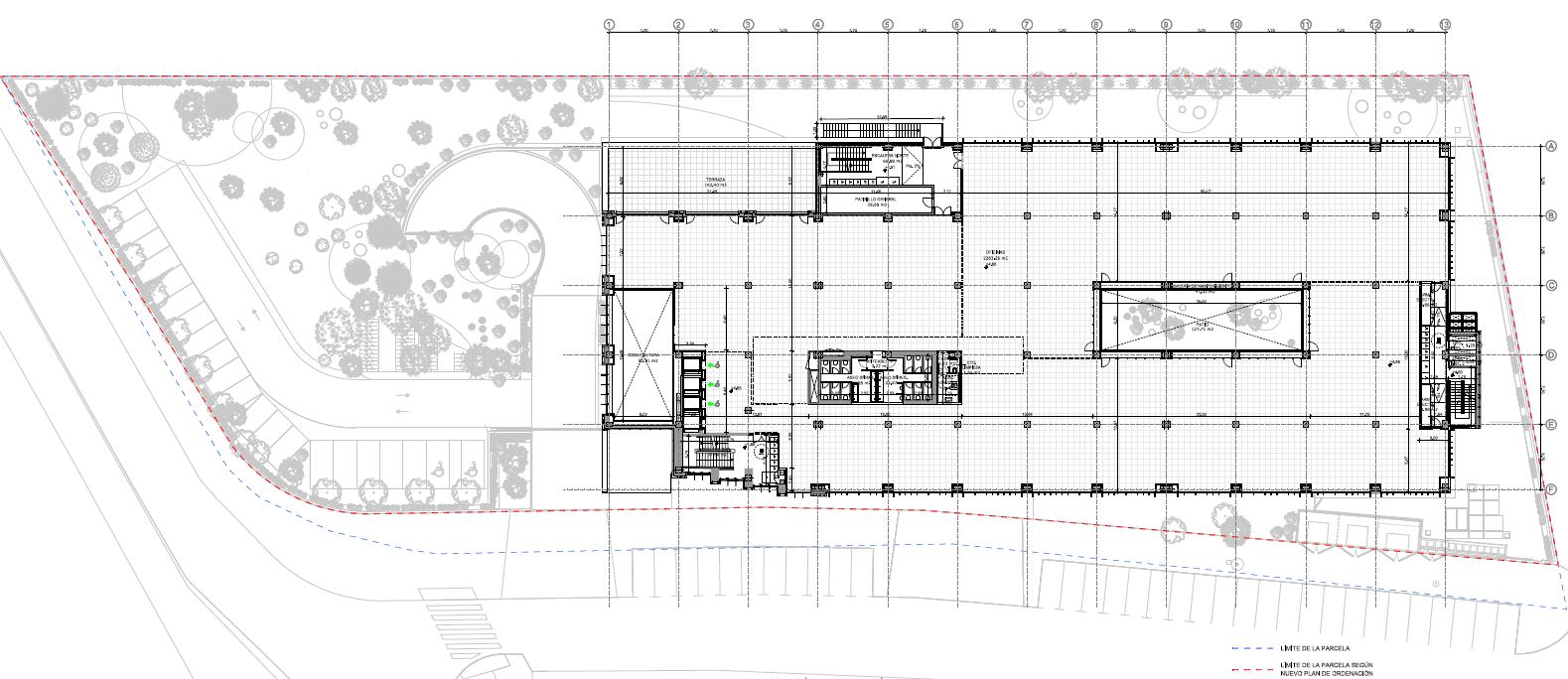
Cadenza es un nuevo y exclusivo edificio con más de 14.500 m² de oficina en alquiler en el noroeste de Madrid. Dispone de 5 plantas, 2 destinadas a parking y 3 plantas diáfanas divisibles en 3 módulos. El edificio goza de excelente iluminación natural y tiene un jardín de 1.400 m². Certificado con Well Healthy and Safety, Well Gold y Leed Gold.

Documentos

Dosier

Este navegador no admite PDFs. Puedes descargar aquí el PDF: Ver PDF

Especificaciones técnicas
Superficie disponible:
14.565,00m²
Certificado Energético:
A
LEED:
Gold
Nº ascensores:
4
Conserjería:
Sistema de Climatización:
4-Pipe Fan Coils, Caliente/Frío
Techos:
Falso techo
Metro
Paradas: San Lorenzo Madrid (L4), Dis: 8
Bus
72, 87, N2, T111
Nº plazas garaje interiores
194
Oficinas en este edificio
Planta Superficie disponible
01- 2.883,00 m²
02- 2.984,00 m²
03- 2.984,00 m²
Acceso- 2.730,00 m²
edificio-cadenza-alquiler-map
Ver todos los planos

Solicitar información de este espacio

Llámanos o contáctanos por Whatsapp:

Llámanos
Ver teléfono 911 01 46 56

O si lo prefieres envíanos un mensaje:

¿Necesitas servicios adicionales?

Gracias por contactar con CBRE
Te daremos respuesta lo antes posible.
Parking
Metro
Bus
Tren
Centro de estudio
Supermercado
Centro comercial
Gimnasio