Alquiler - Valencia
Ciudad ros casares
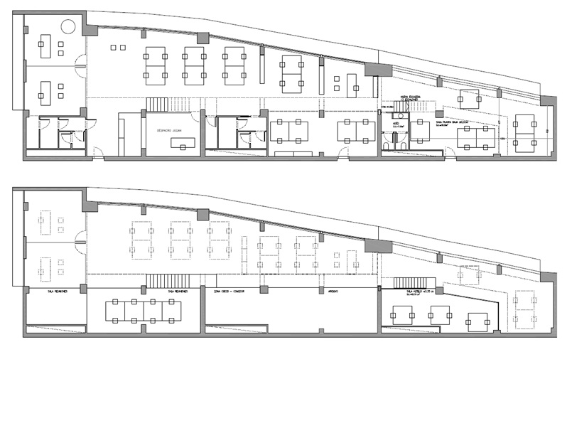
Fully equipped office with furniture, wiring and air conditioning. Very spacious and bright with large windows. The office has a surface area of 650sqm divided into a 497sqm floor and a mezzanine of 154sqm. It has a reception, 3 large offices, meeting room, kitchen and large work room Possibility of 9 parking spaces not included in the rent.
Especificaciones técnicas
Superficie disponible:
650,00m²
Instalaciones:
Falso suelo
Nº ascensores:
4
Sistema de Climatización:
Caliente/Frío
Techos:
Armstrong
Oficinas en este edificio
Planta | Superficie disponible |
---|---|
0- | 650,00 m² |

Ver todos los planos
Solicitar información de este espacio
Llámanos o contáctanos por Whatsapp:
O si lo prefieres envíanos un mensaje:
Parking
Metro
Bus
Tren
Centro de estudio
Supermercado
Centro comercial
Gimnasio